.jpg)
.png)
.jpg)
.jpg)
.jpg)
Maison avec piscine, terrain et possibilité d’agrandissement
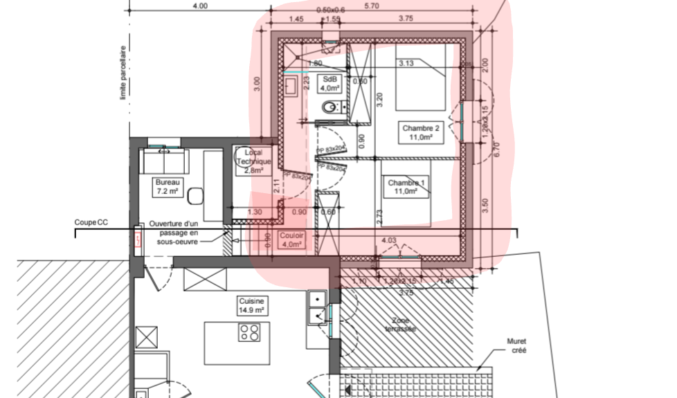
Les propriétaires avaient lancé un projet d’agrandissement : la création de deux chambres supplémentaires, d’un WC et d’une salle d’eau. Le permis a été validé par la mairie et reste valable encore quatre ans. Mais une opportunité les emmène ailleurs. Ce petit cocon est désormais à transmettre.
La maison actuelle se compose de trois chambres, dont une en rez-de-chaussée (idéale en bureau), deux salles d’eau, une salle de bain et deux WC.
Le terrain, agréable et fonctionnel, accueille une piscine récente, conforme aux normes en vigueur.
Tout est en règle : diagnostics réalisés, permis accepté, maison prête à accueillir une nouvelle vie.
Un lieu idéal pour une famille, avec de belles perspectives d’évolution.
Vos Retours, Notre Engagement
Votre expérience et vos retours sont au centre de nos préoccupations. Nous nous engageons à vous offrir un accompagnement sur mesure.


